SOA
2015 - 2019
Aalen, Deutschland
- Architektur: Manuel Du, Thuy Duong Du,
Bennet Kayser - Ort: Aalen, Deutschland
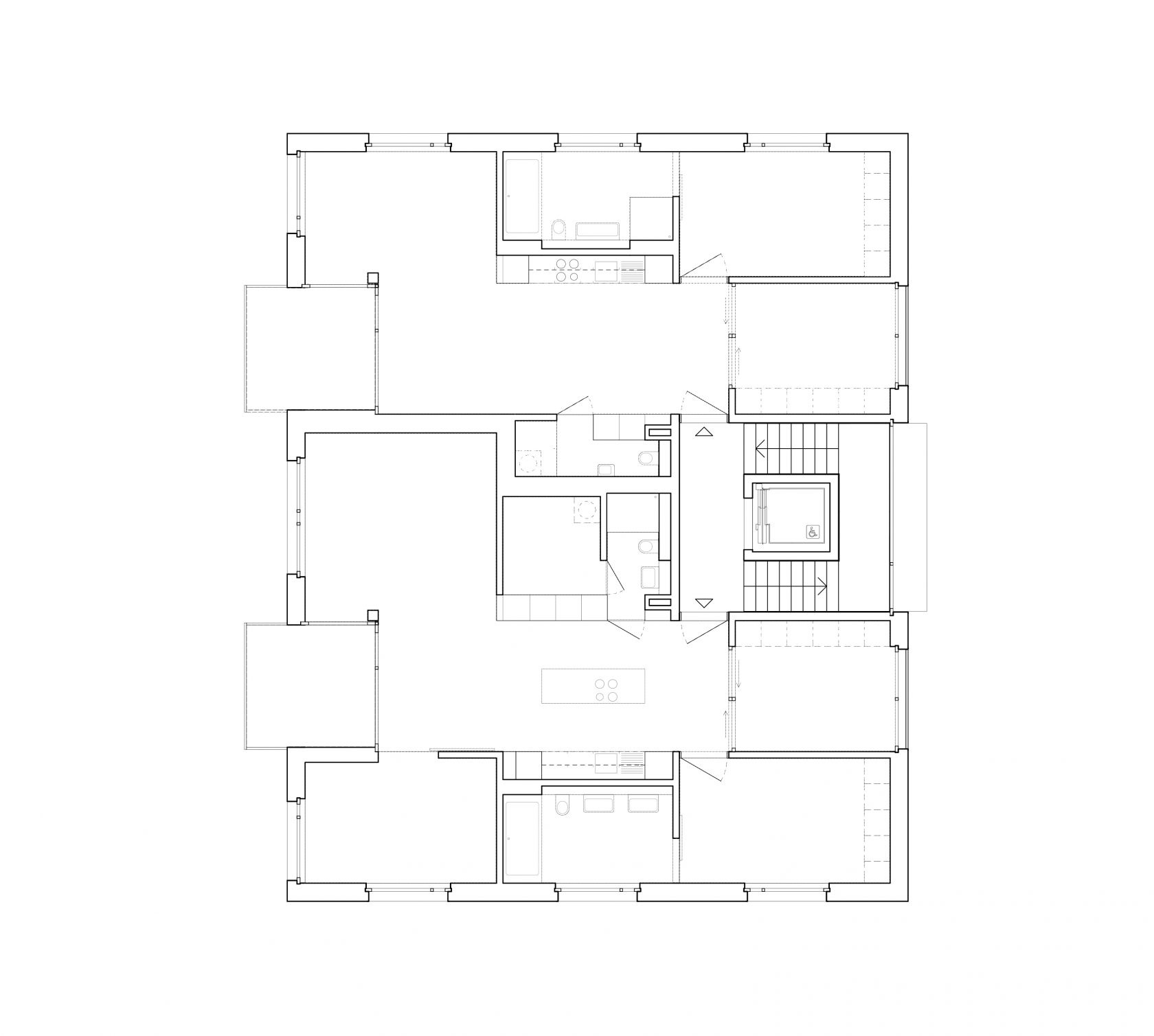
- Funktion: Mehrfamilienhaus mit 8 Wohnungen
- Bauherrschaft: Baugruppe SOA
- Status: Fertigstellung 2020
Wettbewerb: 2015, 1.Preis - Nutzflaeche: 800 qm / 3.250 cbm
- Bauingenieur: Fischer+Friedrich, Fellbach · Helber+Ruff, Ludwigsburg
Elektroplanung: LDS Stockhammer Ingenieure GbR, Aalen - Gebäudetechnik: IB Spielmann GmbH & Co. KG, Aalen
- Bauphysik: Local Warming Ingenieure, Ehrenkirchen
Brandschutz: IngPunkt Ingenieursgesellschaft mbH, Augsburg Hugo Häring Preis 2020
Callway Auszeichnung Wohnbauten des Jahres 2021
Auszeichnung Holzbaupreis BW 2022















