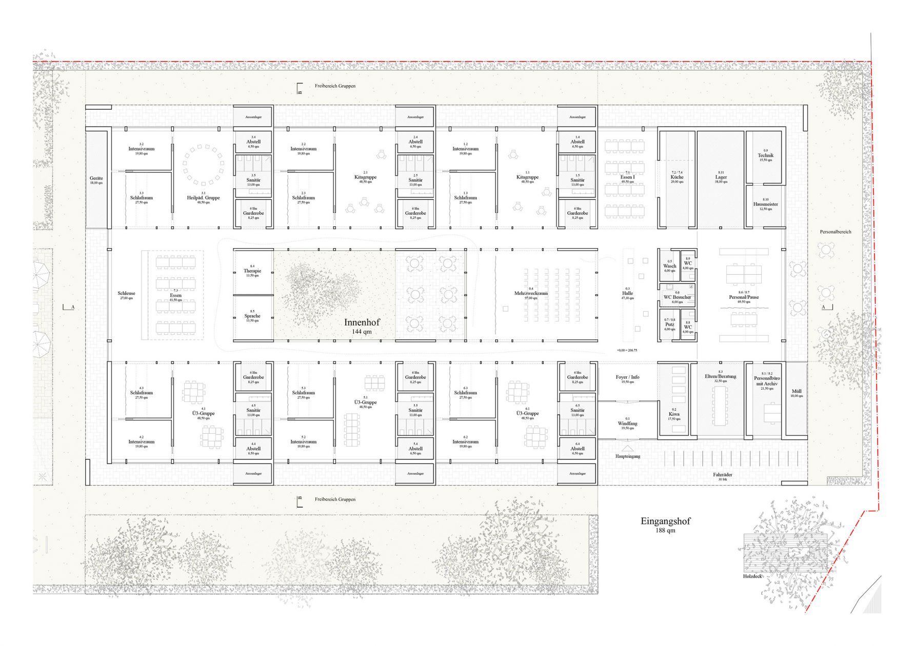
Walldorf
2016 - 2016
Walldorf, Deutschland
- Architektur: Manuel Du und Bennet Kayser Architekten
- Ort: Walldorf, Deutschland
- Funktion: Kindertagesstätte
- Bauherrschaft: Stadt Walldorf
- Status: Wettbewerb 2016, 3.Preis
- Nutzflaeche: 7.750 qm / 7.500 cbm
- Kooperation: Modellbau: Reinraum GmbH, Stuttgart












